
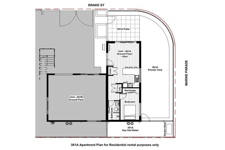
361 Marine Parade, New Brighton, Christchurch, 8061 is a Residential property built in 1970 with 2 bedrooms, 3 bathrooms and 2 parking spaces. The property is estimated to be valued in the range of $700,000 to $750,000.
The property last sold on 8 August 2019 for $450,000. It was sold by Gold Real Estate Group Papanui, (Licensed: Reaa 2008), and took 22 days to sell. On 1 August 2025, 361 Marine Parade, New Brighton, Christchurch, 8061 had a Rating Valuation with a Capital Value of $690,000, Land Value of $320,000 and Improvement Value of $370,000.
| Date | Type | Price | Agent/Agency |
|---|---|---|---|
| 17 Apr 2026 | Rented | $470 | Tamara Mark of Harcourts Gold Property Management |
| 8 Aug 2019 | SOLD | $450,000 | |
| 18 Jul 2019 | BY NEGOTIATION | Price Not Disclosed | Catherine Aitken of Gold Real Estate Group Papanui, (Licensed: Reaa 2008) |
| 12 Apr 2011 | SOLD | $365,000 |
Lot 8 Deposited Plan 23750
There are no similar properties in the area that are listed for sale or recently sold.