
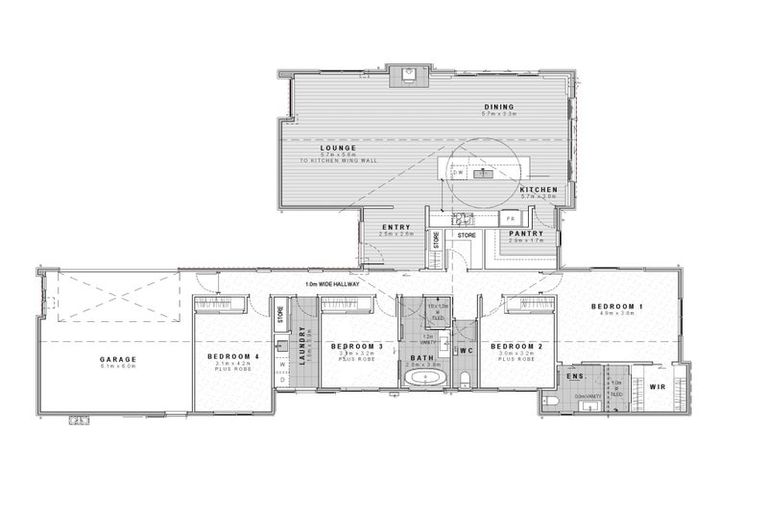
4 Harrier Lane, Marshland, 8051 is a Residential property built in 2025 with 4 bedrooms, 2 bathrooms and 3 parking spaces. The property is estimated to be valued in the range of $1,200,000 to $1,300,000.
The property last sold on 19 August 2025 for $1,100,000. It was sold by Harcourts City Christchurch. On 1 August 2022, 4 Harrier Lane, Marshland, 8051 had a Rating Valuation with a Capital Value of $1,090,000, Land Value of $450,000 and Improvement Value of $640,000.
| Date | Type | Price | Agent/Agency |
|---|---|---|---|
| 19 Aug 2025 | SOLD | $1,100,000 | |
| 9 Jun 2025 | ASKING PRICE | $1,149,000 | Jonny Nicholls of Grenadier Real Estate Ltd City, (Licensed: Reaa 2008) |
| 26 Jan 2025 | SOLD | $430,000 |
Lot 8 Deposited Plan 602502
There are no similar properties in the area that are listed for sale or recently sold.