
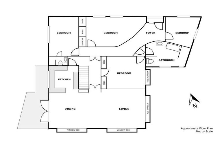
5 Simeon Quay, Lyttelton, 8082 is a Residential property built in 1900 with 4 bedrooms, 1 bathroom and 1 parking space. The property is estimated to be valued in the range of $800,000 to $900,000.
The property last sold on 19 May 2023 for $805,000. It was sold by Vicki Tahau Paton Real Estate, (Licensed: Reaa 2008), and took 16 days to sell. On 1 August 2025, 5 Simeon Quay, Lyttelton, 8082 had a Rating Valuation with a Capital Value of $800,000, Land Value of $330,000 and Improvement Value of $470,000.
| Date | Type | Price | Agent/Agency |
|---|---|---|---|
| 19 May 2023 | SOLD | $805,000 | |
| 4 May 2023 | BY NEGOTIATION | Price Not Disclosed | Lynnette Baird of Vicki Tahau Paton Real Estate, (Licensed: Reaa 2008) |
| 26 Jan 1995 | SOLD | $110,000 | |
| 1 Apr 1994 | SOLD | $102,000 | |
| 9 Apr 1992 | SOLD | $108,000 | |
| 25 Sep 1987 | SOLD | $55,000 | |
| 15 Aug 1982 | SOLD | $21,000 |
Part Town Section 279 Town of Lyttelton
There are no similar properties in the area that are listed for sale or recently sold.