
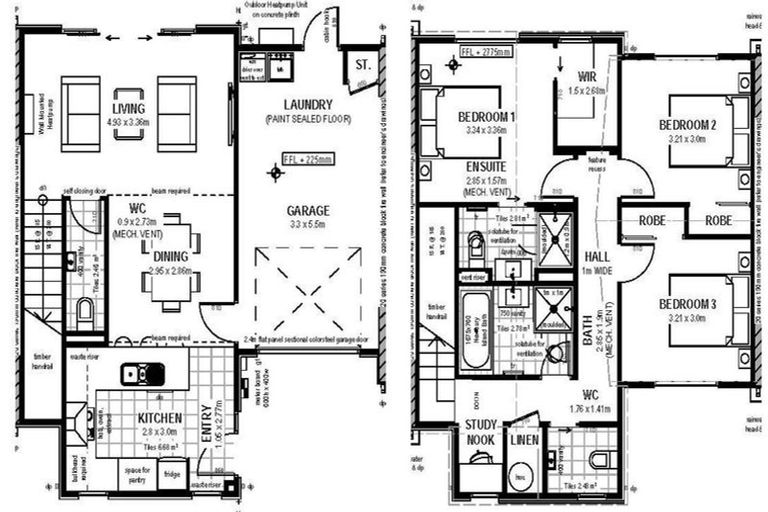
2/34 John Campbell Crescent, Hillmorton, Christchurch, 8024 is a Residential property built in 2015 with 3 bedrooms, 2 bathrooms and 1 parking space. The property is estimated to be valued in the range of $700,000 to $750,000.
The property last sold on 4 February 2016 for $499,000. On 1 August 2025, 2/34 John Campbell Crescent, Hillmorton, Christchurch, 8024 had a Rating Valuation with a Capital Value of $670,000, Land Value of $280,000 and Improvement Value of $390,000.
| Date | Type | Price | Agent/Agency |
|---|---|---|---|
| 20 Oct 2023 | Rented | $599 | 0508 Rental of A1 Property Managers Ltd |
| 8 Sep 2020 | Rented | $480 | Sarah Pritchard of Venture Property Management Ltd |
| 3 Dec 2019 | Rented | $480 | Sue Flynn of Venture Property Management Ltd |
| 1 Aug 2019 | Rented | $480 | Sue Flynn of Venture Property Management Ltd |
| 4 Feb 2016 | SOLD | $499,000 |
Lot 2 Deposited Plan 492369
There are no similar properties in the area that are listed for sale or recently sold.