
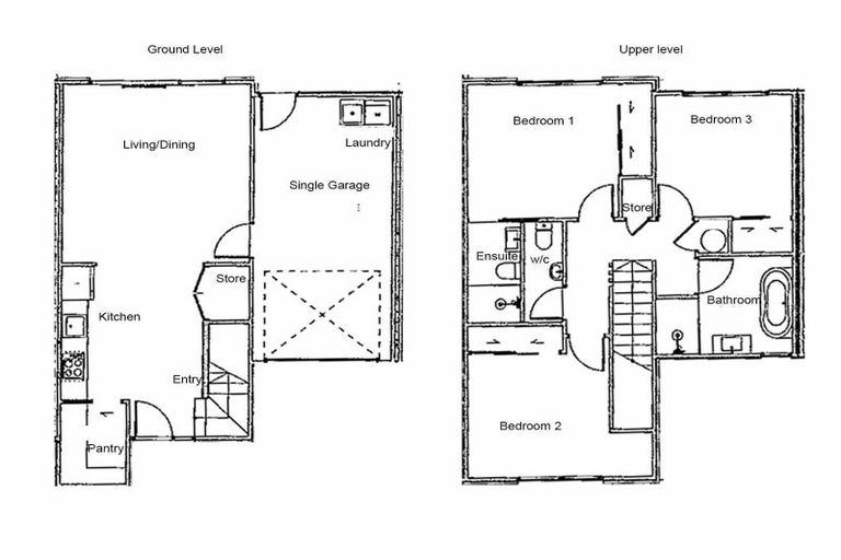
2/31 Champion Street, Edgeware, Christchurch, 8013 is a Residential property built in 2023 with 3 bedrooms, 2 bathrooms and 1 parking space. The property is estimated to be valued in the range of $650,000 to $700,000.
The property last sold on 22 July 2021 for $685,000. On 1 August 2022, 2/31 Champion Street, Edgeware, Christchurch, 8013 had a Rating Valuation with a Capital Value of $720,000, Land Value of $255,000 and Improvement Value of $465,000.
| Date | Type | Price | Agent/Agency |
|---|---|---|---|
| 12 Sep 2025 | Rented | $620 | |
| 30 Jul 2024 | Rented | $620 | Rebecca | Anna-Marie Gerber of Xclusive Property Management |
| 22 Jul 2021 | SOLD | $685,000 |
Lot 2 Deposited Plan 586105
There are no similar properties in the area that are listed for sale or recently sold.