
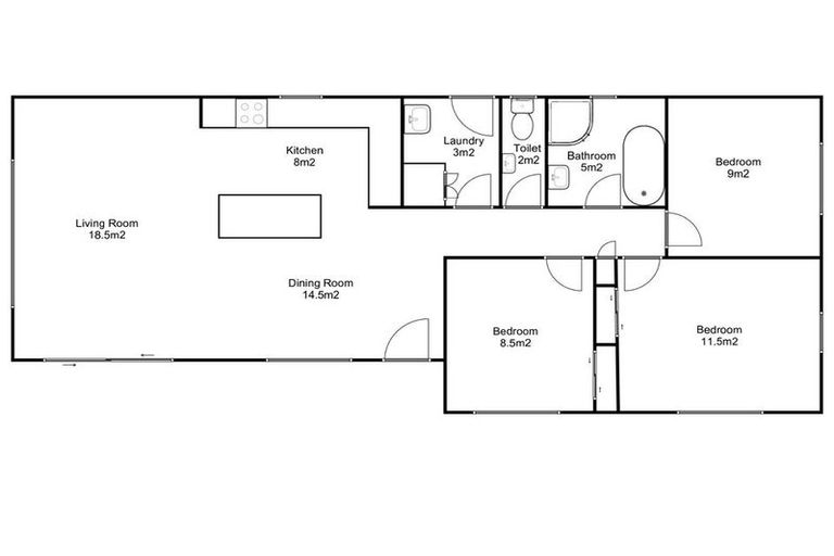
3 Northfield Road, Casebrook, Christchurch, 8051 is a Residential property built in 1975 with 3 bedrooms, 1 bathroom and 2 parking spaces. The property is estimated to be valued in the range of $800,000 to $900,000.
The property last sold on 26 February 2024 for $740,000. It was sold by Najib Real Estate Ltd, (Licensed: Reaa 2008), and took 14 days to sell. On 1 August 2025, 3 Northfield Road, Casebrook, Christchurch, 8051 had a Rating Valuation with a Capital Value of $760,000, Land Value of $460,000 and Improvement Value of $300,000.
| Date | Type | Price | Agent/Agency |
|---|---|---|---|
| 26 Feb 2024 | SOLD | $740,000 | |
| 13 Feb 2024 | BY NEGOTIATION | Price Not Disclosed | Sha Jega of Najib Real Estate Ltd, (Licensed: Reaa 2008) |
| 28 Nov 2018 | SOLD | $496,000 | |
| 8 Nov 2018 | AUCTION | Price Not Disclosed | Garry Huata of Mike Pero Real Estate Reaa (2008), (Licensed: Reaa 2008) |
| 1 Apr 2012 | SOLD | $305,000 | Jo Hutton of Warwick Todd |
| 28 Nov 2011 | DEADLINE PRIVATE TREATY | $329,000 | Jo Hutton of Warwick Todd |
| 1 Jul 1990 | SOLD | $125,000 |
Lot 29 Deposited Plan 34871
There are no similar properties in the area that are listed for sale or recently sold.