
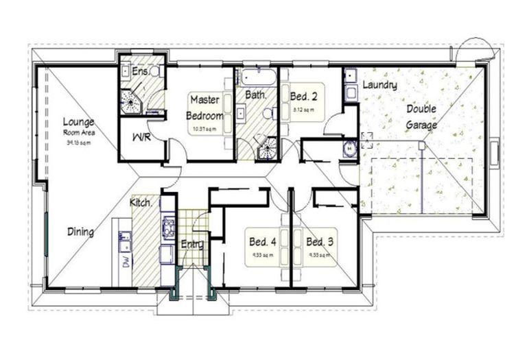
1/8 Cherry Place, Casebrook, Christchurch, 8051 is a Residential property built in 2024 with 4 bedrooms, 2 bathrooms and 2 parking spaces. The property is estimated to be valued in the range of $900,000 to $1,000,000.
The property last sold on 21 June 2023 for $391,500. It was sold by Golden Homes Christchurch, and took 245 days to sell. On 1 August 2025, 1/8 Cherry Place, Casebrook, Christchurch, 8051 had a Rating Valuation with a Capital Value of $870,000, Land Value of $400,000 and Improvement Value of $470,000.
| Date | Type | Price | Agent/Agency |
|---|---|---|---|
| 28 Aug 2024 | Rented | $725 | Pieta Shaw of Grenadier Rent Shop Ltd |
| 21 Jun 2023 | SOLD | $391,500 | Lisa De Vries of Golden Homes Christchurch |
| 20 Oct 2022 | ASKING PRICE | $919,500 | Lisa De Vries of Golden Homes Christchurch |
| 7 Jul 2022 | SOLD | $580,000 | |
| 17 Dec 2014 | SOLD | $530,000 | |
| 15 Feb 1999 | SOLD | $175,000 |
Lot 1 Deposited Plan 588275
There are no similar properties in the area that are listed for sale or recently sold.