
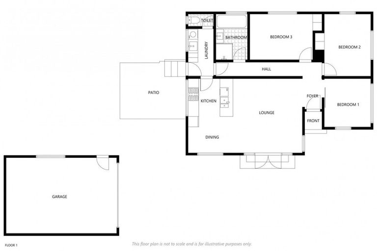
29 Liverton Crescent, Bishopdale, Christchurch, 8053 is a Residential property built in 1960 with 3 bedrooms, 1 bathroom and 2 parking spaces. The property is estimated to be valued in the range of $800,000 to $900,000.
The property last sold on 19 November 2021 for $800,000. It was sold by Tall Poppy Christchurch North, and took 13 days to sell. On 1 August 2025, 29 Liverton Crescent, Bishopdale, Christchurch, 8053 had a Rating Valuation with a Capital Value of $860,000, Land Value of $480,000 and Improvement Value of $380,000.
| Date | Type | Price | Agent/Agency |
|---|---|---|---|
| 19 Nov 2021 | SOLD | $800,000 | Your Property Pilots of Tall Poppy Christchurch North |
| 7 Nov 2021 | ENQUIRIES OVER | $695,000 | Your Property Pilots of Tall Poppy Christchurch North |
| 21 Mar 2016 | SOLD | $492,000 | |
| 11 Jan 2016 | ENQUIRIES OVER | $489,000 | |
| 10 Jul 2014 | SOLD | $424,000 |
Lot 41 Deposited Plan 22114
There are no similar properties in the area that are listed for sale or recently sold.