
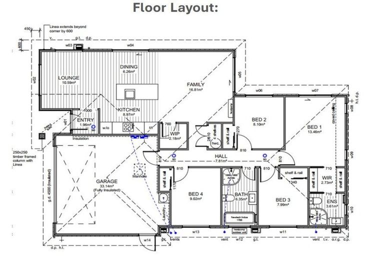
18 Llew Summers Street, Belfast, Christchurch, 8051 is a Residential property built in 2024 with 4 bedrooms, 2 bathrooms and 2 parking spaces. The property is estimated to be valued in the range of $800,000 to $900,000.
The property last sold on 1 December 2023 for $764,900. It was sold by Oakridge Homes Limited, and took 17 days to sell. On 1 August 2025, 18 Llew Summers Street, Belfast, Christchurch, 8051 had a Rating Valuation with a Capital Value of $760,000, Land Value of $350,000 and Improvement Value of $410,000.
| Date | Type | Price | Agent/Agency |
|---|---|---|---|
| 1 Dec 2023 | SOLD | $764,900 | |
| 15 Nov 2023 | ASKING PRICE | $769,900 | Oakridge Homes of Oakridge Homes Limited |
| 7 Aug 2023 | SOLD | $276,153 |
Lot 215 Deposited Plan 597220
There are no similar properties in the area that are listed for sale or recently sold.