
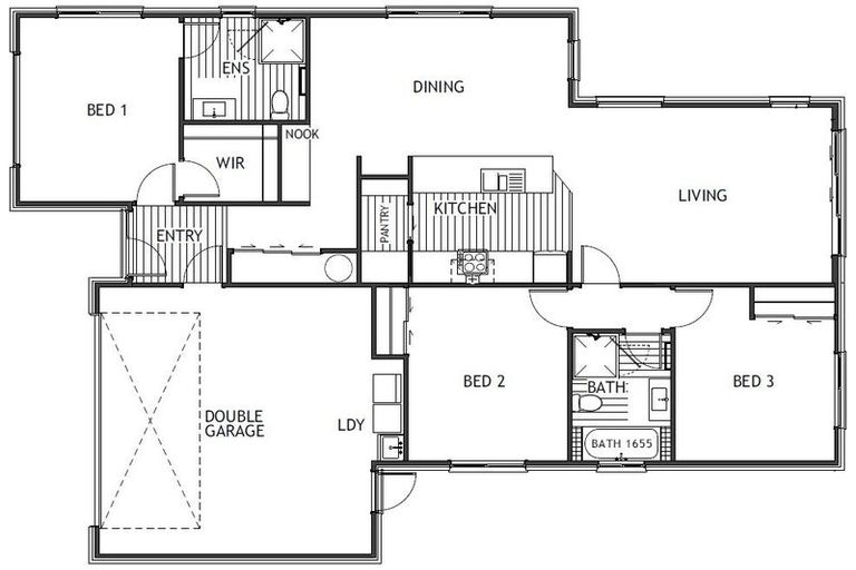
39 Memorial Crescent, Methven, 7730 is a Residential property built in 2026 with 3 bedrooms, 2 bathrooms and 2 parking spaces. The property is estimated to be valued in the range of $800,000 to $900,000.
The property last sold on 16 August 2024 for $220,000. It was sold by Jennian Homes Canterbury, and took 278 days to sell. On 1 July 2024, 39 Memorial Crescent, Methven, 7730 had a Rating Valuation with a Capital Value of $770,000, Land Value of $190,000 and Improvement Value of $580,000.
| Date | Type | Price | Agent/Agency |
|---|---|---|---|
| 16 Aug 2024 | SOLD | $220,000 | Darren Kim of Jennian Homes Canterbury |
| 23 Feb 2024 | ASKING PRICE | $715,000 | Darren Kim of Jennian Homes Canterbury |
| 28 May 2021 | SOLD | $147,826 |
Lot 79 Deposited Plan 587485
There are no similar properties in the area that are listed for sale or recently sold.