
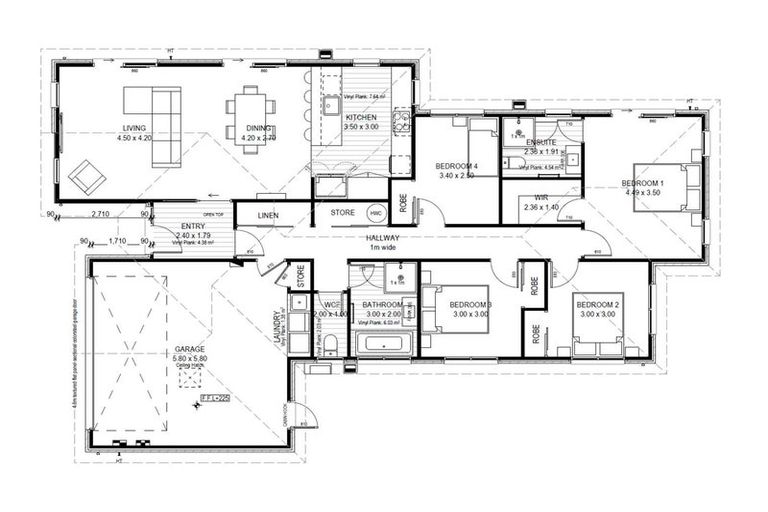
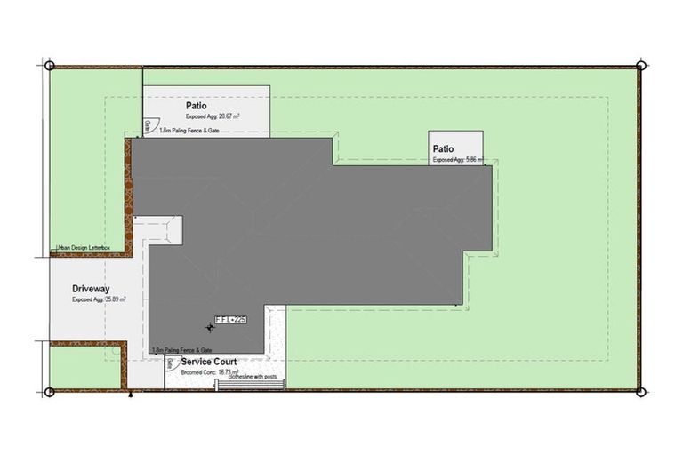
31 Strowan Avenue, Elgin, Ashburton, 7700 is a Residential property built in 2023 with 4 bedrooms, 2 bathrooms and 2 parking spaces. The property is estimated to be valued in the range of $750,000 to $800,000.
The property last sold on 24 July 2023 for $720,000. It was sold by Ashburton Real Estate Limited, (Licensed: Reaa 2008), and took 21 days to sell. On 1 July 2024, 31 Strowan Avenue, Elgin, Ashburton, 7700 had a Rating Valuation with a Capital Value of $730,000, Land Value of $200,000 and Improvement Value of $530,000.
| Date | Type | Price | Agent/Agency |
|---|---|---|---|
| 24 Jul 2023 | SOLD | $720,000 | |
| 4 Jul 2023 | ASKING PRICE | $735,000 | Tammy McDougall of Ashburton Real Estate Limited, (Licensed: Reaa 2008) |
| 2 Dec 2021 | SOLD | $205,000 |
Lot 40 Deposited Plan 577461
There are no similar properties in the area that are listed for sale or recently sold.