
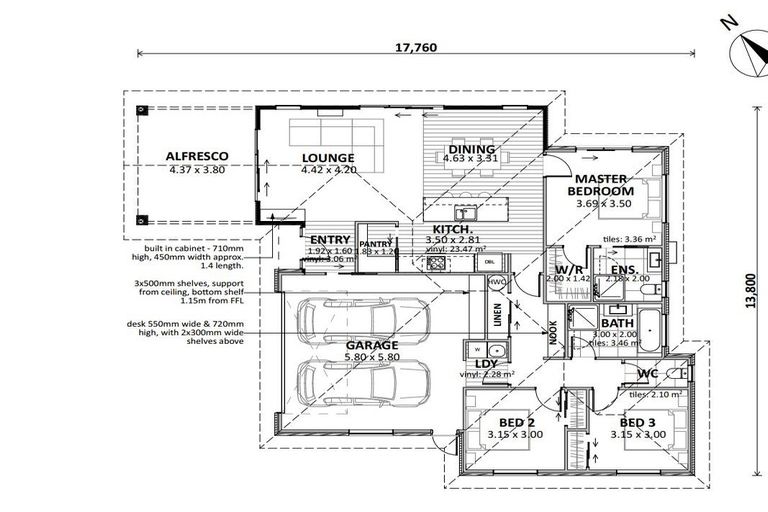
7a Augusta Rise, Omokoroa, 3114 is a Residential property built in 2022 with 3 bedrooms, 2 bathrooms and 2 parking spaces. The property is estimated to be valued in the range of $900,000 to $1,000,000.
The property last sold on 23 June 2023 for $955,000. It was sold by Tall Poppy Omokoroa Limited, (Licensed: Reaa 2008), and took 51 days to sell. On 1 September 2022, 7a Augusta Rise, Omokoroa, 3114 had a Rating Valuation with a Capital Value of $990,000, Land Value of $505,000 and Improvement Value of $485,000.
| Date | Type | Price | Agent/Agency |
|---|---|---|---|
| 6 Aug 2025 | Rented | $750 | |
| 23 Jun 2023 | SOLD | $955,000 | |
| 4 May 2023 | ENQUIRIES OVER | $985,000 | Linley Ward of Tall Poppy Omokoroa Limited, (Licensed: Reaa 2008) |
| 16 Jun 2022 | DEADLINE PRIVATE TREATY | Price Not Disclosed | |
| 23 Apr 2022 | Rented | $670 | |
| 21 Sep 2021 | Rented | $670 | |
| 9 Dec 2020 | SOLD | $719,700 |
Lot 38 Deposited Plan 534539
There are no similar properties in the area that are listed for sale or recently sold.