
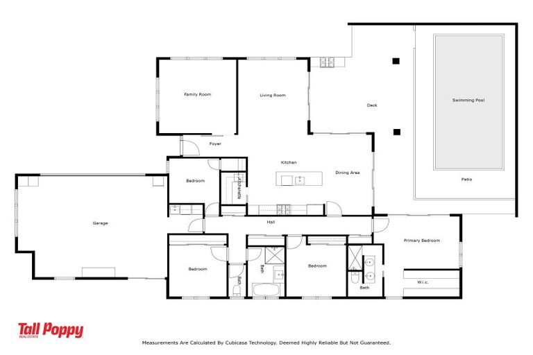
14 Serenity Drive, Omokoroa, 3114 is a Residential property built in 2022 with 4 bedrooms, 2 bathrooms and 2 parking spaces. The property is estimated to be valued in the range of $1,500,000 to $1,600,000.
The property last sold on 21 September 2023 for $1,590,000. It was sold by Tall Poppy Central Limited, (Licensed: Reaa 2008). On 1 September 2022, 14 Serenity Drive, Omokoroa, 3114 had a Rating Valuation with a Capital Value of $1,520,000, Land Value of $680,000 and Improvement Value of $840,000.
| Date | Type | Price | Agent/Agency |
|---|---|---|---|
| 21 Sep 2023 | SOLD | $1,590,000 | Annabel Reyes of Tall Poppy Central Limited, (Licensed: Reaa 2008) |
| 21 Sep 2023 | SOLD | $1,590,000 | |
| 27 Aug 2023 | ENQUIRIES OVER | $1,595,000 | Shelley Wood of Tall Poppy Central Limited, (Licensed: Reaa 2008) |
| 27 Aug 2023 | ENQUIRIES OVER | $1,595,000 | Shelley Wood of Tall Poppy Central Limited, (Licensed: Reaa 2008) |
| 25 Jan 2021 | SOLD | $490,000 |
Lot 21 Deposited Plan 521172
There are no similar properties in the area that are listed for sale or recently sold.