
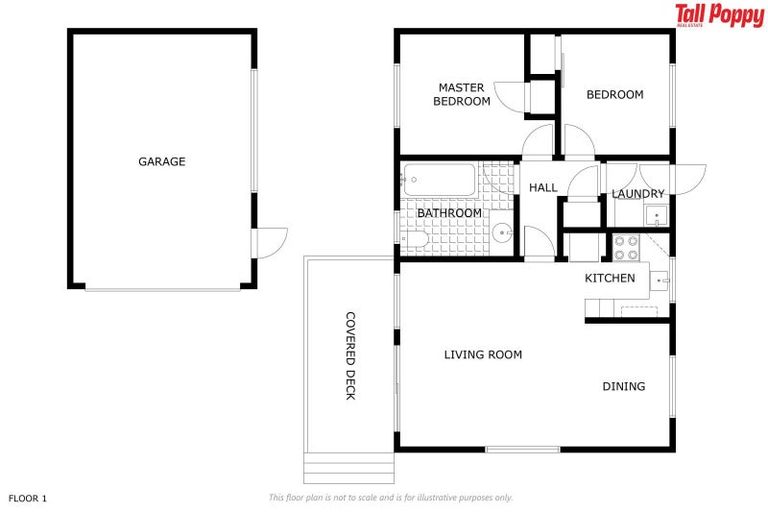
38b Kaitemako Road, Welcome Bay, Tauranga, 3112 is a Residential property built in 1986 with 2 bedrooms, 1 bathroom and 0 parking spaces. The property is estimated to be valued in the range of $600,000 to $650,000.
The property last sold on 23 February 2024 for $595,000. It was sold by Tall Poppy Tauranga South Limited, (Licensed: Reaa 2008), and took 124 days to sell. On 1 May 2023, 38b Kaitemako Road, Welcome Bay, Tauranga, 3112 had a Rating Valuation with a Capital Value of $640,000, Land Value of $290,000 and Improvement Value of $350,000.
| Date | Type | Price | Agent/Agency |
|---|---|---|---|
| 3 Jul 2025 | Rented | $600 | Myrent.Co.Nz of Myrent.Co.NZ Ltd |
| 23 Feb 2024 | SOLD | $595,000 | |
| 23 Oct 2023 | ASKING PRICE | $595,000 | Joanna Morrell of Tall Poppy Tauranga South Limited, (Licensed: Reaa 2008) |
| 17 Dec 2009 | SOLD | $187,000 | Callum Duncanson of Eves Real Estate |
| 6 Nov 2009 | AUCTION | Price Not Disclosed | Callum Duncanson of Eves Real Estate |
Lot 2 Deposited Plan South Auckland 38309
There are no similar properties in the area that are listed for sale or recently sold.