
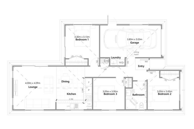
2 Wharangi Lane, Papamoa, 3118 is a Residential property built in 2023 with 3 bedrooms, 1 bathroom and 0 parking spaces. The property is estimated to be valued in the range of $600,000 to $650,000.
It is unknown when the property was last sold or how much it was sold for. On 1 May 2023, 2 Wharangi Lane, Papamoa, 3118 had a Rating Valuation with a Capital Value of $735,000, Land Value of $340,000 and Improvement Value of $395,000.
| Date | Type | Price | Agent/Agency |
|---|---|---|---|
| 25 Mar 2025 | SOLD | $789,000 | |
| 13 Dec 2024 | ASKING PRICE | $789,000 | Emily Phibbs of Venture Developements Ltd |
| 1 Jan 1930 | SOLD | $0 |
Lot 506 Deposited Plan 589379
There are no similar properties in the area that are listed for sale or recently sold.