
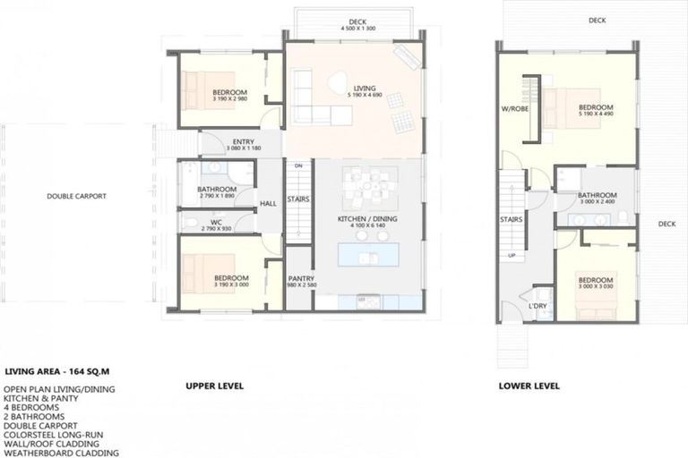
297a Otumoetai Road, Otumoetai, Tauranga, 3110 is a Residential property built in 2023 with 3 bedrooms, 2 bathrooms and 2 parking spaces. The property is estimated to be valued in the range of $750,000 to $800,000.
The property last sold on 3 July 2023 for $755,000. It was sold by Eves Cherrywood, (Licensed: Reaa 2008), and took 73 days to sell. On 1 May 2023, 297a Otumoetai Road, Otumoetai, Tauranga, 3110 had a Rating Valuation with a Capital Value of $700,000, Land Value of $310,000 and Improvement Value of $390,000.
| Date | Type | Price | Agent/Agency |
|---|---|---|---|
| 31 Jul 2023 | Rented | $700 | Mike of Focus Property Management, (Licensed: Reaa 2008) |
| 3 Jul 2023 | SOLD | $755,000 | |
| 22 Apr 2023 | ASKING PRICE | $775,000 | Jason Hyde-Hills of Eves Cherrywood, (Licensed: Reaa 2008) |
| 5 Dec 2022 | ASKING PRICE | $895,000 | Evan Norris of Ray White Papamoa (Realty Focus Ltd), (Licensed: Reaa 2008) |
| 21 Jul 2021 | Rented | $350 | Rentlink of Rent Link 2012 Ltd |
| 3 Nov 2020 | SOLD | $260,000 | |
| 3 Jul 2020 | Rented | $330 | Rentlink of Rent Link 2012 Ltd |
| 23 Jul 2019 | ASKING PRICE | $255,000 | Jon Parrington of Tremains Bay OF Plenty, (Licensed: Reaa 2008) |
Lot 2 Deposited Plan 515817
There are no similar properties in the area that are listed for sale or recently sold.