
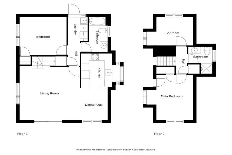
10b Maitland Street, Greerton, Tauranga, 3112 is a Residential property built in 1989 with 3 bedrooms, 2 bathrooms and 0 parking spaces. The property is estimated to be valued in the range of $700,000 to $750,000.
The property last sold on 31 July 2023 for $690,000. It was sold by @Realty, (Licensed: Reaa 2008), and took 231 days to sell. On 1 May 2023, 10b Maitland Street, Greerton, Tauranga, 3112 had a Rating Valuation with a Capital Value of $690,000, Land Value of $365,000 and Improvement Value of $325,000.
| Date | Type | Price | Agent/Agency |
|---|---|---|---|
| 31 Jul 2023 | SOLD | $690,000 | Julie & Nandi Freewill@Realty of @Realty, (Licensed: Reaa 2008) |
| 13 Dec 2022 | ASKING PRICE | $699,000 | Julie & Nandi Freewill@Realty of @Realty, (Licensed: Reaa 2008) |
| 1 Feb 2008 | SOLD | $320,000 | Glenn Whiteman of Eves Real Estate |
| 11 Oct 2007 | DEADLINE PRIVATE TREATY | $335,000 | Glenn Whiteman of Eves Real Estate |
| 17 Aug 2005 | SOLD | $275,000 | |
| 16 Apr 1997 | SOLD | $169,000 | |
| 11 Apr 1989 | SOLD | $23,000 |
Lot 18 Deposited Plan South Auckland 695
There are no similar properties in the area that are listed for sale or recently sold.