
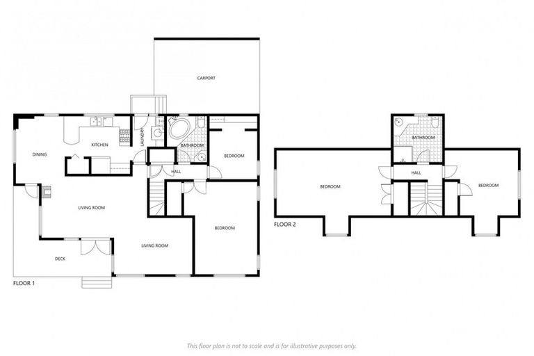
106 Hyde Avenue, Richmond Heights, Taupo, 3330 is a Residential property built in 1976 with 4 bedrooms, 2 bathrooms and 0 parking spaces. The property is estimated to be valued in the range of $750,000 to $800,000.
It is unknown when the property was last sold or how much it was sold for. On 1 July 2022, 106 Hyde Avenue, Richmond Heights, Taupo, 3330 had a Rating Valuation with a Capital Value of $860,000, Land Value of $425,000 and Improvement Value of $435,000.
| Date | Type | Price | Agent/Agency |
|---|---|---|---|
| 9 Mar 2022 | SOLD | $890,000 | Jess Gordine of Tall Poppy Taupo |
| 13 Feb 2022 | BY NEGOTIATION | Price Not Disclosed | Jess Gordine of Tall Poppy Taupo, (Licensed: Reaa 2008) |
| 25 Jul 2019 | SOLD | $537,000 | |
| 18 Jul 2019 | ASKING PRICE | $569,000 | Dave Wallace - Licensed Agent Rea 2008 of Active Realty, (Licensed: Reaa 2008) |
| 20 Sep 2012 | SOLD | $300,000 | Dale Maisey of Taupo Realty Services Ltd |
| 3 Aug 2012 | ASKING PRICE | $330,000 | Dale Maisey of Taupo Realty Services Ltd |
| 21 Oct 2004 | SOLD | $360,000 | |
| 15 Aug 2003 | SOLD | $285,000 | |
| 25 Jul 1997 | SOLD | $155,000 | |
| 24 Jul 1992 | SOLD | $123,650 | |
| 21 Jun 1989 | SOLD | $120,000 |
Lot 481 Deposited Plan South Auckland 22428
There are no similar properties in the area that are listed for sale or recently sold.