
24a Upland Road, Western Heights, Rotorua, 3015 is a Residential property built in 1980 with 4 bedrooms, 2 bathrooms and 2 parking spaces. The property is estimated to be valued in the range of $600,000 to $650,000.
It is unknown when the property was last sold or how much it was sold for. On 1 July 2023, 24a Upland Road, Western Heights, Rotorua, 3015 had a Rating Valuation with a Capital Value of $515,000, Land Value of $175,000 and Improvement Value of $340,000.
| Date | Type | Price | Agent/Agency |
|---|---|---|---|
| 21 Jan 2026 | ENQUIRIES OVER | $600,000 | Alexander of Listed.Co.NZ (Zone 3) |
| 28 Aug 2023 | ASKING PRICE | $750,000 | Alexander of Listed.Co.NZ |
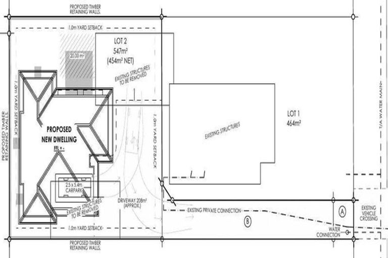
Lot 2 Deposited Plan 585289
There are no similar properties in the area that are listed for sale or recently sold.