
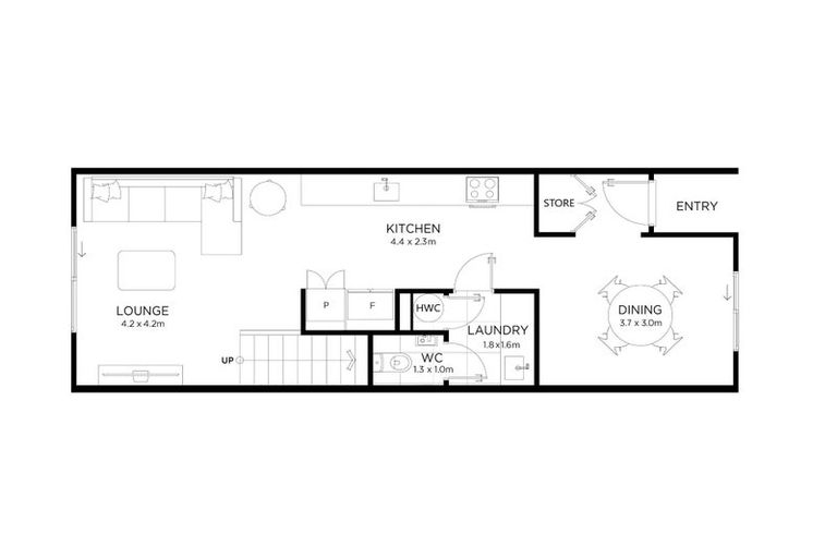
47 Oyster Drive, Whenuapai, Auckland, 0618 is a Residential property built in 2024 with 3 bedrooms, 1 bathroom and 1 parking space. The property is estimated to be valued in the range of $800,000 to $900,000.
The property last sold on 18 September 2025 for an unknown price. It was sold by Fletcher Living Auckland West & North, and took 1 days to sell. On 1 May 2024, 47 Oyster Drive, Whenuapai, Auckland, 0618 had a Rating Valuation with a Capital Value of $790,000, Land Value of $350,000 and Improvement Value of $440,000.
| Date | Type | Price | Agent/Agency |
|---|---|---|---|
| 18 Sep 2025 | $0 | Pending Settlement Advice | |
| 18 Sep 2025 | ASKING PRICE | $859,000 | Marjka King of Fletcher Living Auckland West & North |
| 8 May 2025 | SOLD | $835,000 | Di Murphy of Fletcher Living Auckland West & North |
| 22 Apr 2025 | ASKING PRICE | $859,000 | Di Murphy of Fletcher Living Auckland West & North |
| 1 Jan 1930 | SOLD | $0 |
Lot 27 Deposited Plan 578661
There are no similar properties in the area that are listed for sale or recently sold.