
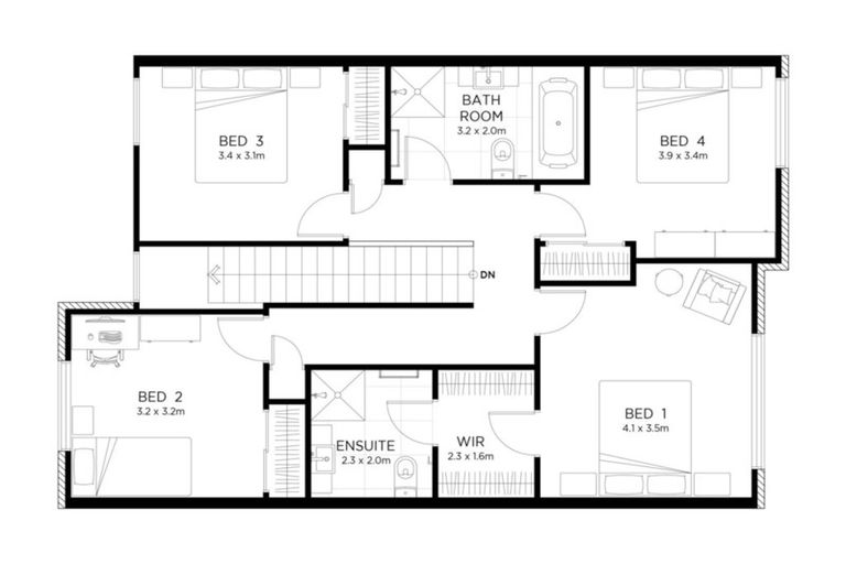
18 Tamiro Road, Whenuapai, Auckland, 0618 is a Residential property built in 2018 with 4 bedrooms, 2 bathrooms and 1 parking space. The property is estimated to be valued in the range of $1,100,000 to $1,200,000.
It is unknown when the property was last sold or how much it was sold for. On 1 May 2024, 18 Tamiro Road, Whenuapai, Auckland, 0618 had a Rating Valuation with a Capital Value of $1,150,000, Land Value of $640,000 and Improvement Value of $510,000.
| Date | Type | Price | Agent/Agency |
|---|---|---|---|
| 15 Feb 2019 | ASKING PRICE | $919,000 | Debbie Dickens of Fletcher Living |
Lot 209 Deposited Plan 509685
There are no similar properties in the area that are listed for sale or recently sold.