
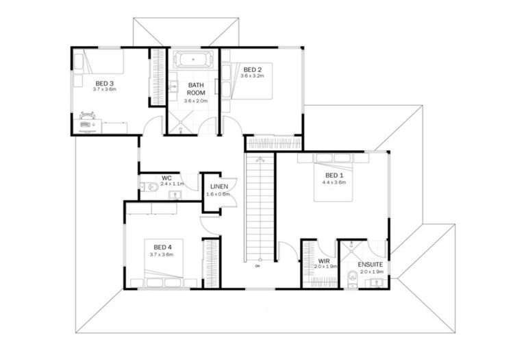
15 Kainga Lane, Whenuapai, Auckland, 0618 is a Residential property built in 2019 with 5 bedrooms, 3 bathrooms and 2 parking spaces. The property is estimated to be valued in the range of $1,300,000 to $1,400,000.
It is unknown when the property was last sold or how much it was sold for. On 1 May 2024, 15 Kainga Lane, Whenuapai, Auckland, 0618 had a Rating Valuation with a Capital Value of $1,275,000, Land Value of $660,000 and Improvement Value of $615,000.
| Date | Type | Price | Agent/Agency |
|---|---|---|---|
| 27 Nov 2019 | SOLD | $1,189,000 | |
| 19 Nov 2019 | ASKING PRICE | $1,189,000 | Debbie Dickens of Fletcher Living |
| 13 Oct 2014 | SOLD | $17,543,610 |
Lot 127 Deposited Plan 501332
There are no similar properties in the area that are listed for sale or recently sold.