
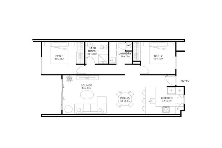
123 Kopuru Road, Whenuapai, Auckland, 0618 is a Residential property built in 2024 with 2 bedrooms, 1 bathroom and 1 parking space. The property is estimated to be valued in the range of $800,000 to $900,000.
The property last sold on 4 November 2024 for $789,000. On 1 May 2024, 123 Kopuru Road, Whenuapai, Auckland, 0618 had a Rating Valuation with a Capital Value of $820,000, Land Value of $470,000 and Improvement Value of $350,000.
| Date | Type | Price | Agent/Agency |
|---|---|---|---|
| 4 Nov 2024 | SOLD | $789,000 | |
| 8 Mar 2024 | ASKING PRICE | $849,000 | Debbie Dickens of Fletcher Living Auckland West & North |
| 12 Dec 2023 | ASKING PRICE | $875,000 | Anne Brens of Fletcher Living |
Lot 55 Deposited Plan 578661
There are no similar properties in the area that are listed for sale or recently sold.