
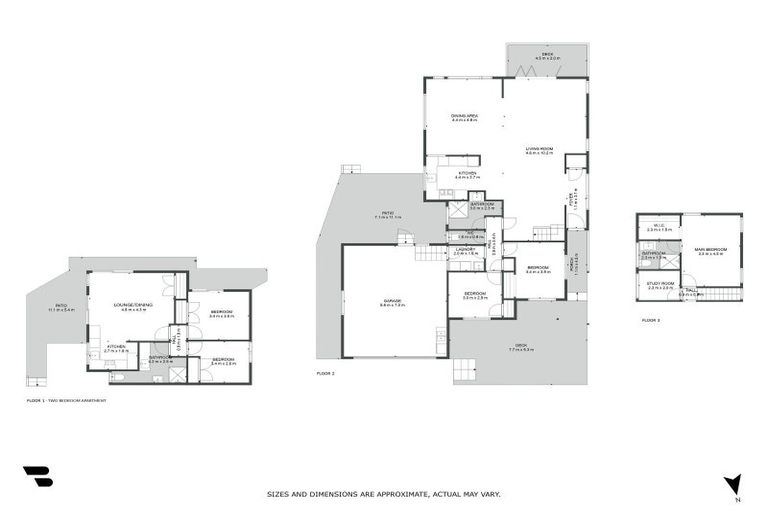
50 Lagoon Way, West Harbour, Auckland, 0618 is a Residential property built in 1990 with 5 bedrooms, 3 bathrooms and 2 parking spaces. The property is estimated to be valued in the range of $1,400,000 to $1,500,000.
The property last sold on 10 November 2011 for $511,500. It was sold by Harcourts Hobsonville Realty. On 1 May 2024, 50 Lagoon Way, West Harbour, Auckland, 0618 had a Rating Valuation with a Capital Value of $1,450,000, Land Value of $960,000 and Improvement Value of $490,000.
| Date | Type | Price | Agent/Agency |
|---|---|---|---|
| 31 Jan 2026 | Rented | $790 | Noor Kaur of Faceup Property Management Ltd |
| 24 Sep 2024 | Rented | $500 | Noor Kaur of Faceup, (Licensed: Reaa 2008) |
| 5 Apr 2024 | Rented | $550 | Bex Nash of Faceup, (Licensed: Reaa 2008) |
| 14 Feb 2024 | ASKING PRICE | $1,575,000 | Cooper Spiller of Bayleys Northwest, (Licensed: Reaa 2008) |
| 16 Nov 2011 | ASKING PRICE | Price Not Disclosed | Graham Lewis of Harcourts Hobsonville Realty |
| 10 Nov 2011 | SOLD | $511,500 | Graham Lewis of Harcourts Hobsonville Realty |
| 12 Oct 2003 | SOLD | $396,500 | |
| 24 Jun 2003 | SOLD | $341,000 | |
| 18 Dec 2002 | SOLD | $310,000 | Kim Robinson of Bayleys Real Estate Ltd |
| 19 Oct 2002 | DEADLINE PRIVATE TREATY | $330,000 | Kim Robinson of Bayleys Real Estate Ltd |
| 10 Jan 1997 | SOLD | $270,000 | |
| 13 Jul 1995 | SOLD | $265,000 | |
| 8 Mar 1991 | SOLD | $175,000 | |
| 27 Oct 1989 | SOLD | $62,000 | |
| 21 Sep 1987 | SOLD | $55,500 |
Lot 103 Deposited Plan 116470
There are no similar properties in the area that are listed for sale or recently sold.