
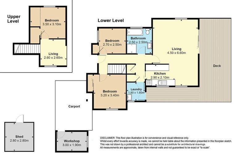
14 Putney Place, Ranui, Auckland, 0612 is a Residential property built in 1980 with 3 bedrooms, 1 bathroom and 1 parking space. The property is estimated to be valued in the range of $800,000 to $900,000.
The property last sold on 30 March 2022 for $967,500. It was sold by Harcourts Henderson Heights Blue Fern Realty. On 1 May 2024, 14 Putney Place, Ranui, Auckland, 0612 had a Rating Valuation with a Capital Value of $900,000, Land Value of $700,000 and Improvement Value of $200,000.
| Date | Type | Price | Agent/Agency |
|---|---|---|---|
| 30 Mar 2022 | SOLD | $967,500 | Fannie Feng of Harcourts Henderson Heights Blue Fern Realty |
| 30 Mar 2022 | SOLD | $967,500 | |
| 24 Jan 2022 | ASKING PRICE | $995,000 | Fiona Li of Harcourts Henderson Heights Blue Fern Realty |
| 24 Jan 2022 | ASKING PRICE | $995,000 | Fiona Li of Harcourts Henderson Heights Blue Fern Realty |
| 27 Oct 2017 | SOLD | $650,500 | |
| 11 Sep 2017 | ASKING PRICE | Price Not Disclosed | Karen Myung of Barfoot & Thompson Ltd West Harbour Licensed: Rea |
| 9 Mar 2015 | SOLD | $460,000 | David Sharma of Ray White Henderson (Real Estate Out West Ltd) |
| 13 Feb 2015 | ASKING PRICE | $469,000 | David Sharma of Ray White Henderson (Real Estate Out West Ltd) |
| 11 Feb 1982 | SOLD | $55,000 |
Lot 7 Deposited Plan 79625
There are no similar properties in the area that are listed for sale or recently sold.