
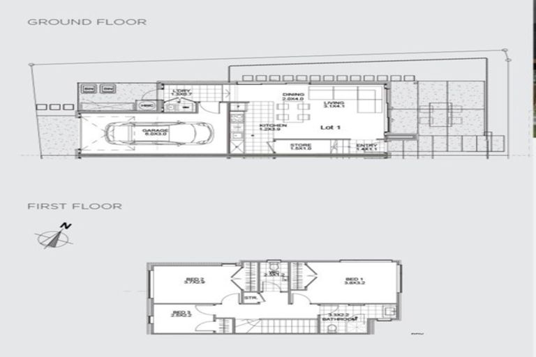
93 Squadron Drive, Hobsonville, Auckland, 0616 is a Residential property built in 2018 with 3 bedrooms, 2 bathrooms and 2 parking spaces. The property is estimated to be valued in the range of $900,000 to $1,000,000.
It is unknown when the property was last sold or how much it was sold for. On 1 May 2024, 93 Squadron Drive, Hobsonville, Auckland, 0616 had a Rating Valuation with a Capital Value of $930,000, Land Value of $545,000 and Improvement Value of $385,000.
| Date | Type | Price | Agent/Agency |
|---|---|---|---|
| 27 Aug 2019 | SOLD | $8,432,173 | |
| 21 Aug 2019 | SOLD | $765,000 |
Lot 1 Deposited Plan 524448
There are no similar properties in the area that are listed for sale or recently sold.