
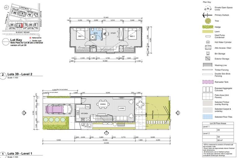
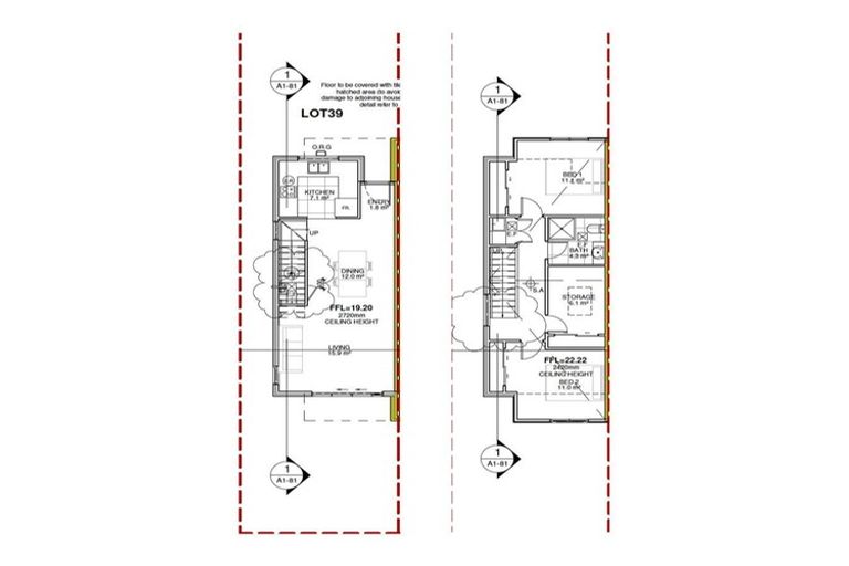
13 Sioux Road, Hobsonville, Auckland, 0616 is a Residential property built in 2022 with 2 bedrooms, 1 bathroom and 0 parking spaces. The property is estimated to be valued in the range of $800,000 to $900,000.
The property last sold on 3 November 2022 for $975,000. It was sold by Harcourts Northwest Realty Ltd. On 1 May 2024, 13 Sioux Road, Hobsonville, Auckland, 0616 had a Rating Valuation with a Capital Value of $880,000, Land Value of $525,000 and Improvement Value of $355,000.
| Date | Type | Price | Agent/Agency |
|---|---|---|---|
| 3 Nov 2022 | SOLD | $975,000 | Winnie Lu of Harcourts Northwest Realty Ltd |
| 3 Nov 2022 | SOLD | $975,000 | |
| 20 Oct 2022 | BY NEGOTIATION | Price Not Disclosed | Winnie Lu of Harcourts Northwest Realty Ltd |
| 20 Oct 2022 | BY NEGOTIATION | Price Not Disclosed | Winnie Lu of Harcourts Northwest Realty Ltd |
Lot 39 Deposited Plan 557120
There are no similar properties in the area that are listed for sale or recently sold.