
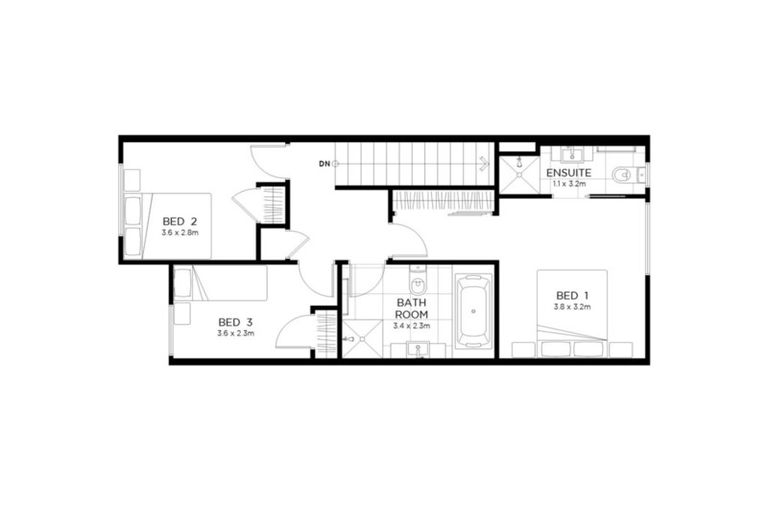
111 Squadron Drive, Hobsonville, Auckland, 0616 is a Residential property built in 2018 with 3 bedrooms, 2 bathrooms and 1 parking space. The property is estimated to be valued in the range of $800,000 to $900,000.
The property last sold on 6 August 2022 for $960,000. On 1 May 2024, 111 Squadron Drive, Hobsonville, Auckland, 0616 had a Rating Valuation with a Capital Value of $900,000, Land Value of $520,000 and Improvement Value of $380,000.
| Date | Type | Price | Agent/Agency |
|---|---|---|---|
| 5 Nov 2024 | Rented | $720 | Luke Zhang of Sunshine Property Group Ltd |
| 1 Dec 2022 | Rented | $700 | Luke Zhang of Sunshine Property Group Ltd |
| 6 Aug 2022 | SOLD | $960,000 |
Lot 20 Deposited Plan 521515
There are no similar properties in the area that are listed for sale or recently sold.