
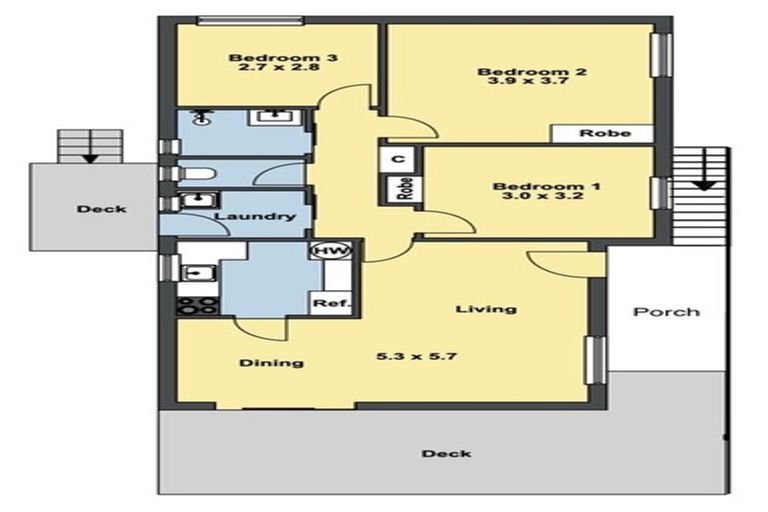
2/48 Lavelle Road, Henderson, Auckland, 0612 is a Residential property built in 1987 with 3 bedrooms, 1 bathroom and 1 parking space. The property is estimated to be valued in the range of $750,000 to $800,000.
The property last sold on 1 December 2022 for $650,000. It was sold by Harcourts Titirangi. On 1 May 2024, 2/48 Lavelle Road, Henderson, Auckland, 0612 had a Rating Valuation with a Capital Value of $810,000, Land Value of $680,000 and Improvement Value of $130,000.
| Date | Type | Price | Agent/Agency |
|---|---|---|---|
| 1 Dec 2022 | SOLD | $650,000 | Sammy Agnew of Harcourts Titirangi |
| 1 Dec 2022 | SOLD | $650,000 | |
| 8 Jun 2022 | ASKING PRICE | $749,000 | |
| 8 Jun 2022 | ASKING PRICE | $749,000 | |
| 5 Apr 2000 | SOLD | $165,000 | |
| 30 Nov 1996 | SOLD | $165,000 |
Flat 2 Deposited Plan 117826
There are no similar properties in the area that are listed for sale or recently sold.