
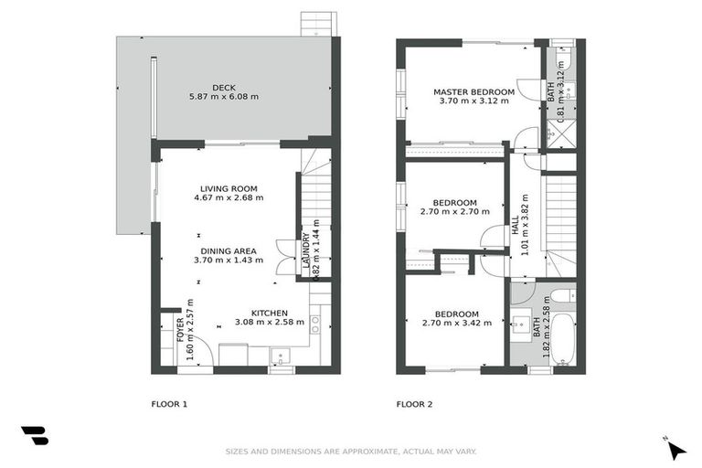
1/31b Garelja Road, Henderson, Auckland, 0612 is a Residential property built in 2019 with 3 bedrooms, 2 bathrooms and 1 parking space. The property is estimated to be valued in the range of $650,000 to $700,000.
The property last sold on 6 November 2021 for $900,000. It was sold by Harcourts. On 1 May 2024, 1/31b Garelja Road, Henderson, Auckland, 0612 had a Rating Valuation with a Capital Value of $740,000, Land Value of $325,000 and Improvement Value of $415,000.
| Date | Type | Price | Agent/Agency |
|---|---|---|---|
| 6 Nov 2021 | SOLD | $900,000 | |
| 21 Oct 2021 | AUCTION | Price Not Disclosed | Richard White of Harcourts Te Atatu Peninsula, (Licensed: Reaa 2008) |
| 3 Nov 2017 | SOLD | $350,000 |
Lot 1 Deposited Plan 534064
There are no similar properties in the area that are listed for sale or recently sold.