
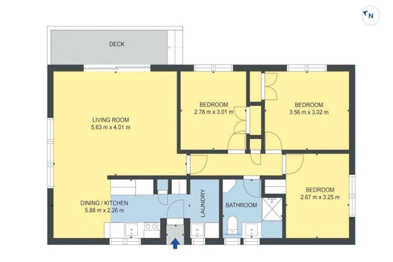
1/164 Universal Drive, Henderson, Auckland, 0610 is a Residential property built in 1985 with 3 bedrooms, 1 bathroom and 1 parking space. The property is estimated to be valued in the range of $700,000 to $750,000.
The property last sold on 20 March 2025 for $670,000. It was sold by Harcourts Henderson, and took 38 days to sell. On 1 May 2024, 1/164 Universal Drive, Henderson, Auckland, 0610 had a Rating Valuation with a Capital Value of $720,000, Land Value of $385,000 and Improvement Value of $335,000.
| Date | Type | Price | Agent/Agency |
|---|---|---|---|
| 20 Mar 2025 | SOLD | $670,000 | |
| 11 Feb 2025 | ENQUIRIES OVER | $665,000 | Georgia Malloy-Jackson of Harcourts Henderson |
| 1 Mar 2024 | Rented | $575 | Denise Boyes of Goodwins |
| 15 Feb 2023 | Rented | $575 | Itomi Toluta’U of Harper Properties |
| 10 Jul 2013 | SOLD | $365,000 | Vijay Kumar of Hub Realty Ltd Mreinz |
| 16 Jun 2013 | ASKING PRICE | Price Not Disclosed | Vijay Kumar of Hub Realty Ltd Mreinz |
| 24 Jan 2007 | SOLD | $280,000 | Alex Feng of Harcourts Te Atatu Love Realty Ltd |
| 18 Jan 2007 | DEADLINE PRIVATE TREATY | $293,000 | Alex Feng of Harcourts Te Atatu Love Realty Ltd |
| 28 Aug 2006 | SOLD | $276,000 | |
| 10 Mar 2004 | DEADLINE PRIVATE TREATY | $209,000 | William Jiang of Rex Davy |
| 16 Feb 2004 | SOLD | $199,000 | |
| 26 Jun 2003 | SOLD | $143,998 | |
| 8 Feb 2000 | SOLD | $115,000 | |
| 16 Dec 1999 | SOLD | $102,500 | |
| 24 Jan 1985 | SOLD | $56,973 |
Flat 1 Deposited Plan 108945
There are no similar properties in the area that are listed for sale or recently sold.