
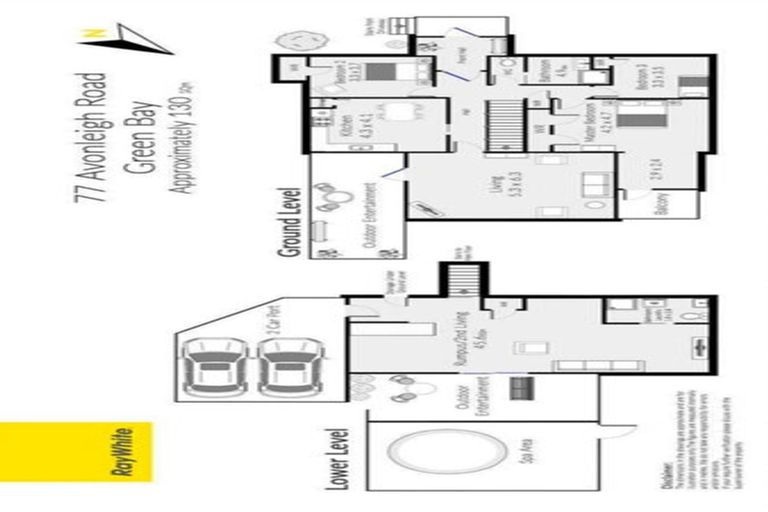
77 Avonleigh Road, Green Bay, Auckland, 0604 is a Residential property built in 1968 with 3 bedrooms, 2 bathrooms and 2 parking spaces. The property is estimated to be valued in the range of $1,000,000 to $1,100,000.
The property last sold on 21 December 2018 for $821,000. It was sold by Ray White. On 1 May 2024, 77 Avonleigh Road, Green Bay, Auckland, 0604 had a Rating Valuation with a Capital Value of $1,125,000, Land Value of $950,000 and Improvement Value of $175,000.
| Date | Type | Price | Agent/Agency |
|---|---|---|---|
| 16 Jan 2025 | Rented | $720 | Victoria of The Rental Bureau |
| 21 Dec 2018 | SOLD | $821,000 | |
| 21 Dec 2018 | SOLD | $821,000 | Martin Ferretti of Austar Realty Ltd Ray White, Blockhouse Bay Licensed: Reaa 2008 |
| 31 Oct 2018 | ASKING PRICE | Price Not Disclosed | Martin Ferretti of Austar Realty Ltd Ray White, Blockhouse Bay Licensed: Reaa 2008 |
| 31 Oct 2018 | ASKING PRICE | Price Not Disclosed | Martin Ferretti of Austar Realty Ltd Ray White, Blockhouse Bay Licensed: Reaa 2008 |
Lot 11 Deposited Plan 60058
There are no similar properties in the area that are listed for sale or recently sold.