
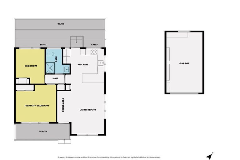
2/52 Butterworth Drive, Glendene, Auckland, 0602 is a Residential property built in 1975 with 2 bedrooms, 1 bathroom and 1 parking space. The property is estimated to be valued in the range of $600,000 to $650,000.
The property last sold on 19 December 2025 for $530,000. On 1 May 2024, 2/52 Butterworth Drive, Glendene, Auckland, 0602 had a Rating Valuation with a Capital Value of $580,000, Land Value of $330,000 and Improvement Value of $250,000.
| Date | Type | Price | Agent/Agency |
|---|---|---|---|
| 13 Mar 2026 | BY NEGOTIATION | Price Not Disclosed | Greg Ashby of Harcourts Henderson Heights Blue Fern Realty, (Licensed: Reaa 2008) |
| 19 Dec 2025 | SOLD | $530,000 | |
| 20 Jan 2023 | Rented | $450 | Kim Govorko of Phoenix Property Management Limited |
| 19 Nov 2019 | Rented | $430 | Kim Dutton -Govorko of Phoenix Property Management Limited |
| 7 Aug 2018 | SOLD | $540,000 | |
| 5 Aug 2014 | SOLD | $356,000 | |
| 31 Jul 2014 | ASKING PRICE | $385,000 | Ann Hutton Areinz of LJ Hooker Henderson - Total Transaction Realty LT |
| 1 Apr 1981 | SOLD | $29,500 |
Flat 1 Deposited Plan 74641 and Garage 4 Deposited Plan 74641
There are no similar properties in the area that are listed for sale or recently sold.