
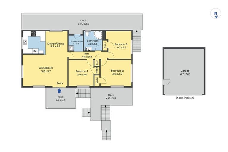
46 Maywood Crescent, Glen Eden, Auckland, 0602 is a Residential property built in 1997 with 3 bedrooms, 1 bathroom and 2 parking spaces. The property is estimated to be valued in the range of $800,000 to $900,000.
It is unknown when the property was last sold or how much it was sold for. On 1 May 2024, 46 Maywood Crescent, Glen Eden, Auckland, 0602 had a Rating Valuation with a Capital Value of $840,000, Land Value of $640,000 and Improvement Value of $200,000.
| Date | Type | Price | Agent/Agency |
|---|---|---|---|
| 6 Apr 2023 | BY NEGOTIATION | Price Not Disclosed | Rizwan Ali of Harcourts Te Atatu South- Shelter Realty Limited, (Licensed: Reaa 2008) |
| 28 Oct 2019 | SOLD | $710,000 | |
| 21 Oct 2019 | ASKING PRICE | $715,000 | Calvin Roche of Barfoot & Thompson Blockhouse Bay |
| 11 May 2015 | SOLD | $597,500 | |
| 8 May 2015 | ASKING PRICE | Price Not Disclosed | |
| 13 Jun 2006 | SOLD | $275,000 | |
| 21 Nov 2004 | SOLD | $245,000 | |
| 23 Jan 2003 | SOLD | $173,000 |
Lot 100 Deposited Plan 132826
There are no similar properties in the area that are listed for sale or recently sold.