
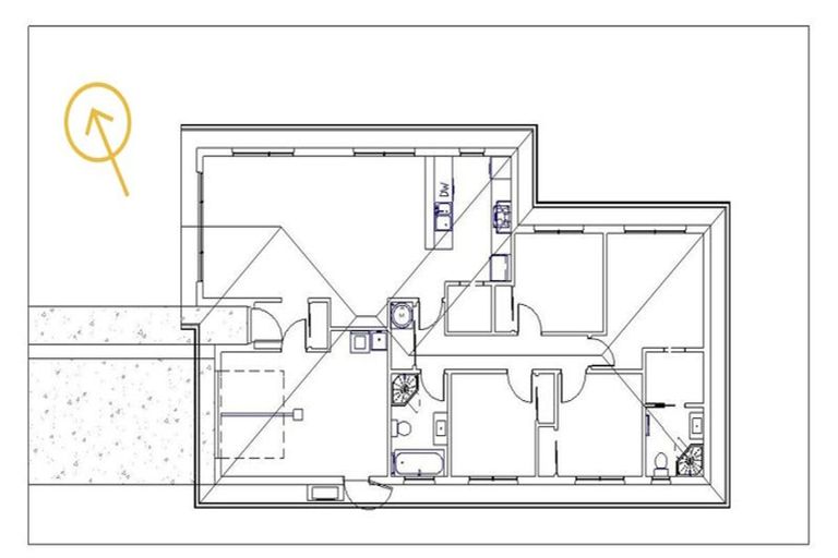
22 Campbell Drive, Warkworth, 0910 is a Residential property built in 1990 with 4 bedrooms, 2 bathrooms and 2 parking spaces. The property is estimated to be valued in the range of $800,000 to $900,000.
The property last sold on 8 February 2001 for $210,000. On 1 May 2024, 22 Campbell Drive, Warkworth, 0910 had a Rating Valuation with a Capital Value of $880,000, Land Value of $410,000 and Improvement Value of $470,000.
| Date | Type | Price | Agent/Agency |
|---|---|---|---|
| 11 Aug 2025 | ASKING PRICE | $799,500 | Lisa De Vries of Golden Homes Christchurch |
| 2 Jul 2009 | ASKING PRICE | $399,000 | |
| 8 Feb 2001 | SOLD | $210,000 | |
| 31 Dec 1996 | SOLD | $236,500 | |
| 9 Oct 1995 | SOLD | $43,750 |
Lot 25 Deposited Plan 170656
There are no similar properties in the area that are listed for sale or recently sold.