
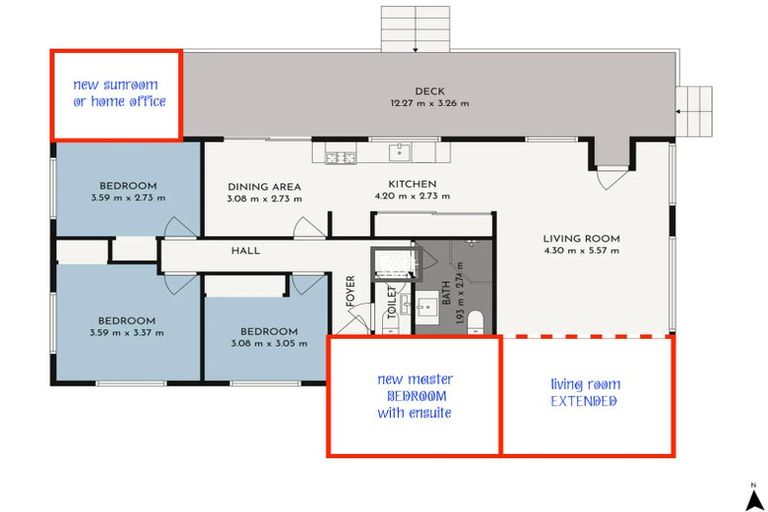
91 Waimauku Station Road, Waimauku, 0812 is a Lifestyle property built in 1950 with 3 bedrooms, 1 bathroom and 2 parking spaces. The property is estimated to be valued in the range of $1,100,000 to $1,200,000.
The property last sold on 27 January 2025 for $1,560,000. On 1 May 2024, 91 Waimauku Station Road, Waimauku, 0812 had a Rating Valuation with a Capital Value of $1,225,000, Land Value of $700,000 and Improvement Value of $525,000.
| Date | Type | Price | Agent/Agency |
|---|---|---|---|
| 5 Jun 2025 | ASKING PRICE | $966,000 | |
| 17 Mar 2025 | Rented | $790 | |
| 27 Jan 2025 | SOLD | $1,560,000 | |
| 15 Apr 2024 | SOLD | $1,560,000 | |
| 6 Jul 2019 | Rented | $590 | Jacqui Sergeant of Ray White Kumeu (Vista Realty Ltd) |
| 14 Jun 2014 | SOLD | $920,000 | |
| 14 May 2011 | SOLD | $690,000 | Stephen Theobald of Harcourts Loyal Realty Ltd |
| 11 May 2011 | AUCTION | Price Not Disclosed | Stephen Theobald of Harcourts Loyal Realty Ltd |
| 9 Dec 2010 | AUCTION | Price Not Disclosed | Stephen Theobald of Harcourts Loyal |
| 16 Jul 1999 | SOLD | $290,000 |
Part Waikoukou 2A3 Block
There are no similar properties in the area that are listed for sale or recently sold.