
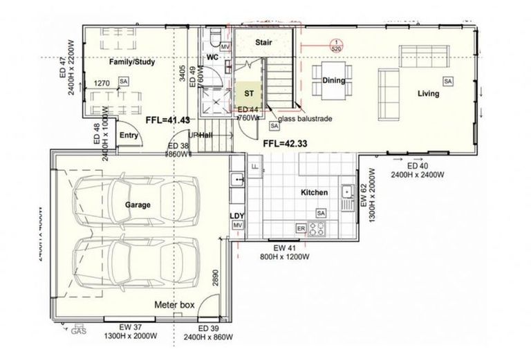
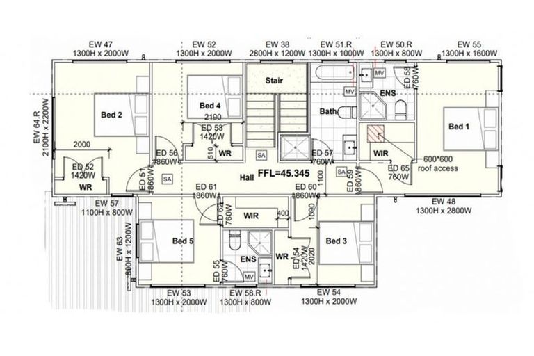
43 Clara Road, Silverdale, 0932 is a Residential property built in 2023 with 4 bedrooms, 4 bathrooms and 2 parking spaces. The property is estimated to be valued in the range of $1,300,000 to $1,400,000.
The property last sold on 9 July 2024 for $1,250,000. On 1 May 2024, 43 Clara Road, Silverdale, 0932 had a Rating Valuation with a Capital Value of $1,300,000, Land Value of $570,000 and Improvement Value of $730,000.
| Date | Type | Price | Agent/Agency |
|---|---|---|---|
| 9 Jul 2024 | SOLD | $1,250,000 | |
| 9 Aug 2023 | BY NEGOTIATION | Price Not Disclosed | Travis Standen of Key2 Real Estate Limited, (Licensed: Reaa 2008) |
Lot 45 Deposited Plan 580476
There are no similar properties in the area that are listed for sale or recently sold.