
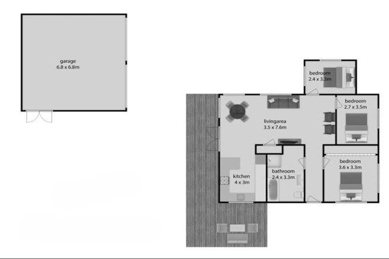
23 Kaipara Portage Road, Riverhead, 0820 is a Residential property built in 1955 with 3 bedrooms, 1 bathroom and 1 parking space. The property is estimated to be valued in the range of $900,000 to $1,000,000.
The property last sold on 7 April 2025 for $976,000. It was sold by Courtney & Co, (Licensed: Reaa 2008). On 1 May 2024, 23 Kaipara Portage Road, Riverhead, 0820 had a Rating Valuation with a Capital Value of $900,000, Land Value of $530,000 and Improvement Value of $370,000.
| Date | Type | Price | Agent/Agency |
|---|---|---|---|
| 7 Apr 2025 | SOLD | $976,000 | |
| 6 Mar 2025 | ENQUIRIES OVER | $975,000 | Courtney Wood of Courtney And Co Ltd |
| 13 Sep 2024 | Rented | $750 | Leonard of Gilco Property Management Ltd |
| 14 Jun 2024 | Rented | $750 | Myrent.Co.Nz of Myrent.Co.NZ Ltd |
| 19 Oct 2023 | SOLD | $915,000 | |
| 16 Sep 2023 | ASKING PRICE | $925,000 | Courtney Wood of Courtney & Co, (Licensed: Reaa 2008) |
| 25 May 2015 | SOLD | $748,000 | |
| 13 Dec 2014 | SOLD | $605,000 | |
| 8 Mar 1990 | SOLD | $112,500 |
Lot 2 Deposited Plan 509696
There are no similar properties in the area that are listed for sale or recently sold.