
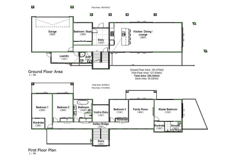
11 Nerehana Place, Red Beach, 0932 is a Residential property built in 2021 with 5 bedrooms, 3 bathrooms and 2 parking spaces. The property is estimated to be valued in the range of $1,600,000 to $1,800,000.
It is unknown when the property was last sold or how much it was sold for. On 1 May 2024, 11 Nerehana Place, Red Beach, 0932 had a Rating Valuation with a Capital Value of $1,650,000, Land Value of $680,000 and Improvement Value of $970,000.
| Date | Type | Price | Agent/Agency |
|---|---|---|---|
| 25 Mar 2019 | ASKING PRICE | $1,130,000 | Tim Scott of Key2 Real Estate Ltd Albany Licensed: Reaa 2008 |
| 6 Nov 2018 | BY NEGOTIATION | Price Not Disclosed | Donna Popham of Key2 Real Estate Ltd Albany Licensed: Reaa 2008 |
| 1 Aug 2017 | ASKING PRICE | Price Not Disclosed | Jeewan D of LJ Hooker Manukau - Real Estate Brokers Ltd |
| 8 May 2017 | ASKING PRICE | Price Not Disclosed | Maree Van De Water of Key2 Real Estate Limited |
Lot 16 Deposited Plan 500051
There are no similar properties in the area that are listed for sale or recently sold.