
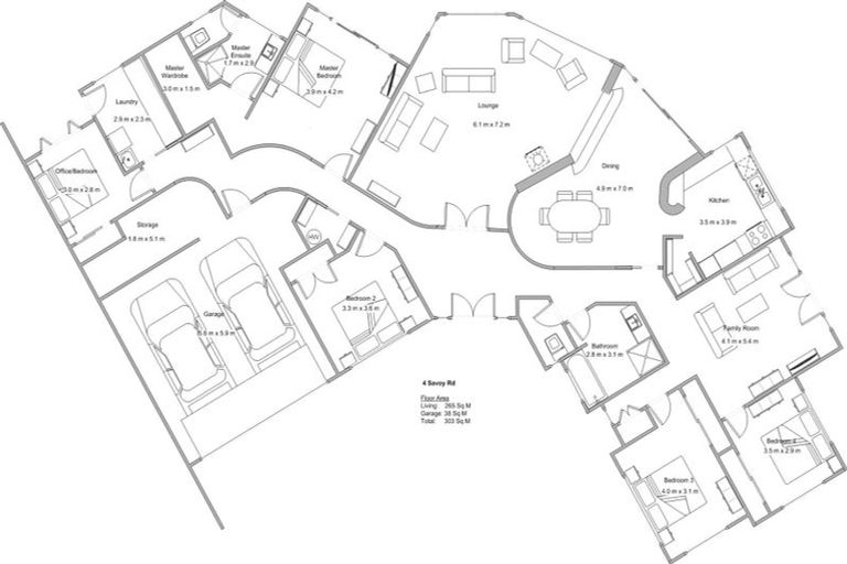
4 Savoy Road, Orewa, 0931 is a Residential property built in 2000 with 5 bedrooms, 1 bathroom and 0 parking spaces. The property is estimated to be valued in the range of $1,600,000 to $1,800,000.
The property last sold on 10 July 2015 for $1,150,000. On 1 May 2024, 4 Savoy Road, Orewa, 0931 had a Rating Valuation with a Capital Value of $1,725,000, Land Value of $1,025,000 and Improvement Value of $700,000.
| Date | Type | Price | Agent/Agency |
|---|---|---|---|
| 17 Aug 2024 | Rented | $1,250 | |
| 14 Jul 2023 | Rented | $1,250 | |
| 10 Jul 2015 | SOLD | $1,150,000 | |
| 31 Jan 2001 | SOLD | $585,000 |
Lot 11 Deposited Plan 139691
There are no similar properties in the area that are listed for sale or recently sold.