
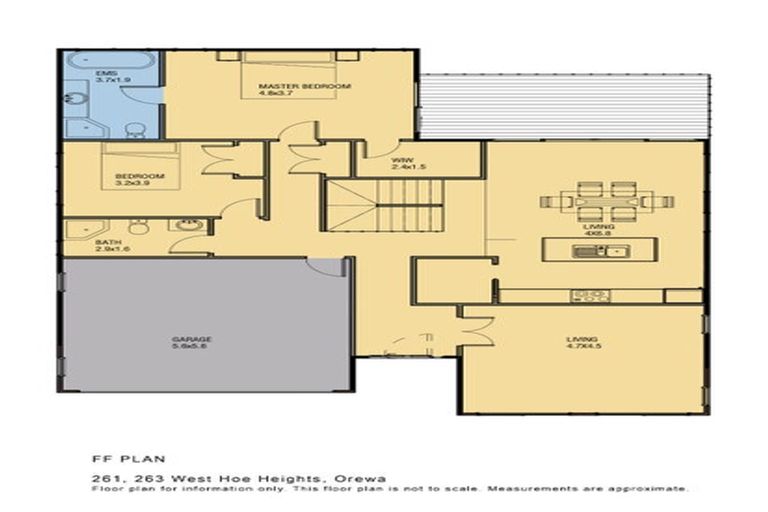
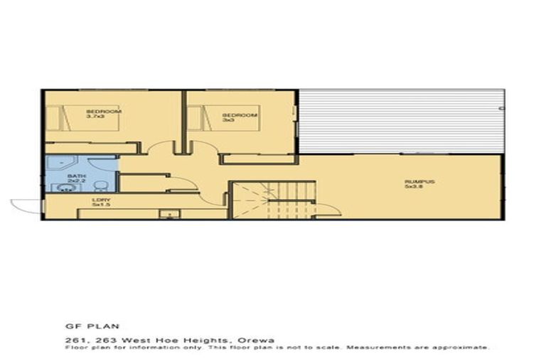
263 West Hoe Heights, Orewa, 0931 is a Residential property built in 2024 with 4 bedrooms, 3 bathrooms and 2 parking spaces. The property is estimated to be valued in the range of $1,500,000 to $1,600,000.
It is unknown when the property was last sold or how much it was sold for. On 1 May 2024, 263 West Hoe Heights, Orewa, 0931 had a Rating Valuation with a Capital Value of $1,525,000, Land Value of $660,000 and Improvement Value of $865,000.
| Date | Type | Price | Agent/Agency |
|---|---|---|---|
| 21 Jan 2026 | BY NEGOTIATION | Price Not Disclosed | Steven Dai of Queen Street Realty, (Licensed: Reaa 2008) |
| 4 Jul 2025 | Rented | $950 | Steven Dai of Queen Street Realty |
| 6 Jun 2021 | SOLD | $510,000 |
Lot 205 Deposited Plan 528791
There are no similar properties in the area that are listed for sale or recently sold.