
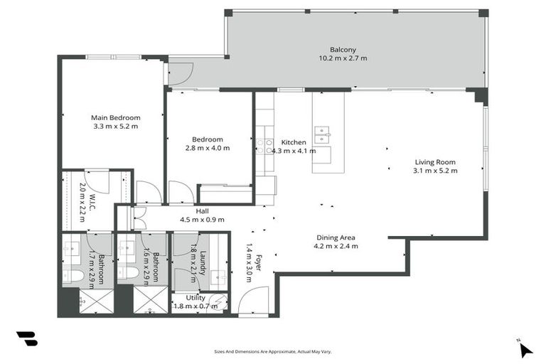
121 Hibiscus Drive, Orewa, 0931 is a Residential property built in 2023 with 2 bedrooms, 2 bathrooms and 1 parking space. The property is estimated to be valued in the range of $1,400,000 to $1,500,000.
It is unknown when the property was last sold or how much it was sold for. On 1 May 2024, 121 Hibiscus Drive, Orewa, 0931 had a Rating Valuation with a Capital Value of $1,425,000, Land Value of $520,000 and Improvement Value of $905,000.
| Date | Type | Price | Agent/Agency |
|---|---|---|---|
| 19 Mar 2026 | ASKING PRICE | $1,495,000 | Paul Jarvis of Kensington Park |
Principal Unit 13 Deposited Plan 579838 and Accessory Unit 13B Deposited Plan 579838
There are no similar properties in the area that are listed for sale or recently sold.