
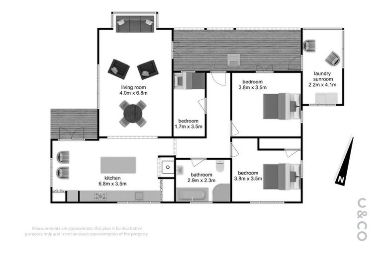
76 Awaroa Road, Helensville, 0800 is a Lifestyle property built in 1930 with 3 bedrooms, 1 bathroom and 2 parking spaces. The property is estimated to be valued in the range of $1,000,000 to $1,100,000.
The property last sold on 1 February 2024 for $1,085,000. It was sold by Courtney & Co, (Licensed: Reaa 2008), and took 14 days to sell. On 1 May 2024, 76 Awaroa Road, Helensville, 0800 had a Rating Valuation with a Capital Value of $1,075,000, Land Value of $700,000 and Improvement Value of $375,000.
| Date | Type | Price | Agent/Agency |
|---|---|---|---|
| 1 Feb 2024 | SOLD | $1,085,000 | |
| 19 Jan 2024 | BY NEGOTIATION | Price Not Disclosed | Courtney Wood of Courtney & Co, (Licensed: Reaa 2008) |
| 26 Nov 2013 | SOLD | $545,000 | Eleanore Webber of Burmester Realty |
| 22 Nov 2013 | ASKING PRICE | $549,000 | Eleanore Webber of Burmester Realty |
| 2 Sep 2006 | SOLD | $450,000 | |
| 2 Dec 2002 | SOLD | $270,000 | |
| 12 Feb 1998 | SOLD | $229,000 | |
| 23 Aug 1993 | SOLD | $135,000 | |
| 9 Nov 1988 | SOLD | $118,000 |
Lot 4 Deposited Plan 117961
There are no similar properties in the area that are listed for sale or recently sold.