
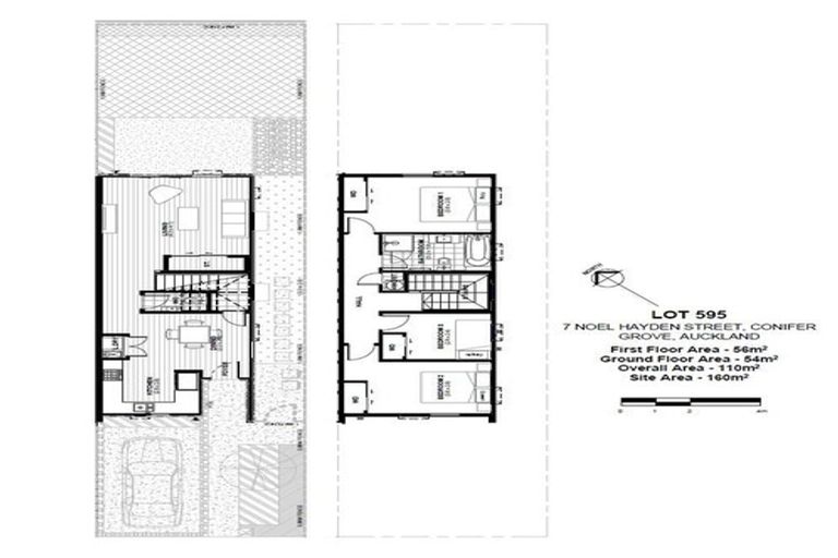
7 Noel Hayden Street, Takanini, 2112 is a Residential property built in 2024 with 3 bedrooms, 1 bathroom and 1 parking space. The property is estimated to be valued in the range of $750,000 to $800,000.
The property last sold on 31 March 2025 for $819,000. It was sold by Fletcher Living Auckland South, and took 126 days to sell. On 1 May 2024, 7 Noel Hayden Street, Takanini, 2112 had a Rating Valuation with a Capital Value of $820,000, Land Value of $360,000 and Improvement Value of $460,000.
| Date | Type | Price | Agent/Agency |
|---|---|---|---|
| 31 Mar 2025 | SOLD | $819,000 | |
| 26 Nov 2024 | ASKING PRICE | $809,000 | Tian Tian Wang of Fletcher Living Auckland South |
Lot 595 Deposited Plan 594890
There are no similar properties in the area that are listed for sale or recently sold.