
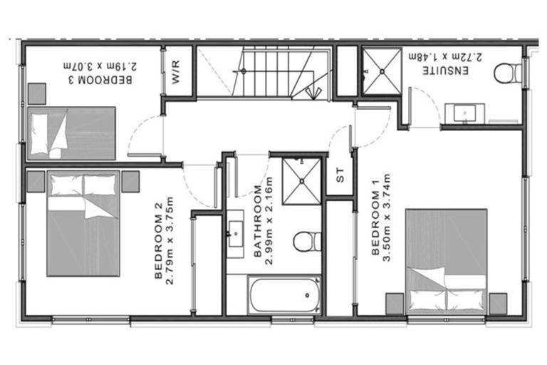
5a Orford Lane, Takanini, 2112 is a Residential property built in 2019 with 3 bedrooms, 3 bathrooms and 1 parking space. The property is estimated to be valued in the range of $800,000 to $900,000.
The property last sold on 21 November 2019 for $699,000. On 1 May 2024, 5a Orford Lane, Takanini, 2112 had a Rating Valuation with a Capital Value of $880,000, Land Value of $350,000 and Improvement Value of $530,000.
| Date | Type | Price | Agent/Agency |
|---|---|---|---|
| 12 Dec 2019 | Rented | $650 | Kim Urquhart of Ray White Karaka (City South Investments 2019 Ltd) |
| 21 Nov 2019 | SOLD | $699,000 | |
| 21 Nov 2019 | SOLD | $699,000 |
Lot 806 Deposited Plan 531137
There are no similar properties in the area that are listed for sale or recently sold.