
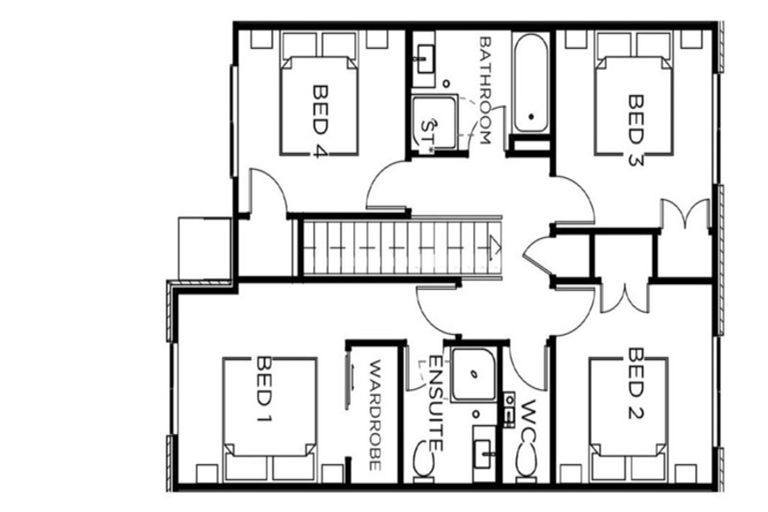
49 Pepene Avenue, Takanini, 2112 is a Residential property built in 2020 with 4 bedrooms, 2 bathrooms and 2 parking spaces. The property is estimated to be valued in the range of $800,000 to $900,000.
The property last sold on 22 June 2020 for $785,000. It was sold by Fletcher Living Auckland South, and took 51 days to sell. On 1 May 2024, 49 Pepene Avenue, Takanini, 2112 had a Rating Valuation with a Capital Value of $880,000, Land Value of $380,000 and Improvement Value of $500,000.
| Date | Type | Price | Agent/Agency |
|---|---|---|---|
| 22 Jun 2020 | SOLD | $785,000 | Christine Fowler of Fletcher Living Auckland South |
| 3 May 2020 | ASKING PRICE | $785,000 | Christine Fowler of Fletcher Living Auckland South |
Lot 154 Deposited Plan 530599
There are no similar properties in the area that are listed for sale or recently sold.