
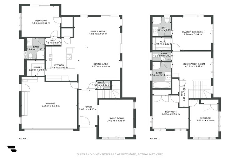
16 Dalray Avenue, Takanini, 2112 is a Residential property built in 2013 with 4 bedrooms, 3 bathrooms and 4 parking spaces. The property is estimated to be valued in the range of $1,100,000 to $1,200,000.
The property last sold on 9 December 2021 for $1,335,000. It was sold by LJ Hooker Manukau, and took 28 days to sell. On 1 May 2024, 16 Dalray Avenue, Takanini, 2112 had a Rating Valuation with a Capital Value of $1,140,000, Land Value of $435,000 and Improvement Value of $705,000.
| Date | Type | Price | Agent/Agency |
|---|---|---|---|
| 9 Dec 2021 | SOLD | $1,335,000 | |
| 12 Nov 2021 | ASKING PRICE | Price Not Disclosed | Jeewan Delwalage of LJ Hooker Manukau |
| 11 Nov 2020 | Rented | $820 | Michelle Bangerter of LJ Hooker Pukekohe |
| 14 Oct 2014 | ASKING PRICE | Price Not Disclosed | Bhupinder Singh of Ray White Takanini (Sue Douglas Property Services |
| 5 Nov 2012 | SOLD | $185,000 |
Lot 82 Deposited Plan 466706
There are no similar properties in the area that are listed for sale or recently sold.