
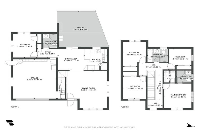
84 Keri Vista Rise, Papakura, 2110 is a Residential property built in 2014 with 5 bedrooms, 3 bathrooms and 4 parking spaces. The property is estimated to be valued in the range of $900,000 to $1,000,000.
The property last sold on 5 March 2022 for $1,198,275. It was sold by Harcourts Twentythree Group, (Licensed: Reaa 2008), and took 24 days to sell. On 1 May 2024, 84 Keri Vista Rise, Papakura, 2110 had a Rating Valuation with a Capital Value of $955,000, Land Value of $460,000 and Improvement Value of $495,000.
| Date | Type | Price | Agent/Agency |
|---|---|---|---|
| 5 Mar 2022 | SOLD | $1,198,275 | |
| 10 Feb 2022 | ASKING PRICE | $1,279,000 | Harry Chang of Harcourts Twentythree Group, (Licensed: Reaa 2008) |
| 18 Mar 2017 | SOLD | $760,000 | |
| 16 Mar 2017 | ASKING PRICE | $789,000 | Viren Jhagroo of Re/Max Countryside Citywide Mreinz Property Selle |
| 19 Dec 2014 | SOLD | $595,000 | Roselyn Chand of Ray White Royal Heights (Our Real Estate Company |
| 13 Jun 2014 | SOLD | $574,500 | Roselyn Chand of Ray White Royal Heights (Our Real Estate Company |
| 27 Sep 2013 | ASKING PRICE | Price Not Disclosed | Roselyn Chand of Ray White Royal Heights (Our Real Estate Company |
| 10 Nov 2011 | ASKING PRICE | $199,000 | |
| 23 Apr 2007 | SOLD | $228,000 |
Lot 210 Deposited Plan 403550
There are no similar properties in the area that are listed for sale or recently sold.