
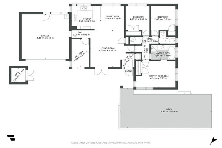
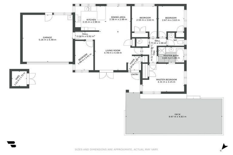
7c East Street, Papakura, 2110 is a Residential property built in 1996 with 4 bedrooms, 1 bathroom and 4 parking spaces. The property is estimated to be valued in the range of $750,000 to $800,000.
The property last sold on 5 December 2017 for $635,000. It was sold by Bayleys. On 1 May 2024, 7c East Street, Papakura, 2110 had a Rating Valuation with a Capital Value of $775,000, Land Value of $560,000 and Improvement Value of $215,000.
| Date | Type | Price | Agent/Agency |
|---|---|---|---|
| 7 Aug 2025 | Rented | $680 | Rupert Harrington of Harper Properties |
| 11 Feb 2022 | Rented | $675 | Chris Russell of Harper Properties |
| 5 Dec 2017 | SOLD | $635,000 | |
| 2 Nov 2017 | AUCTION | Price Not Disclosed | Lyn Penney of Bayleys Pukekohe |
| 23 Jan 2003 | SOLD | $245,000 | |
| 8 Sep 1997 | SOLD | $220,000 |
Lot 3 Deposited Plan 174133
There are no similar properties in the area that are listed for sale or recently sold.