
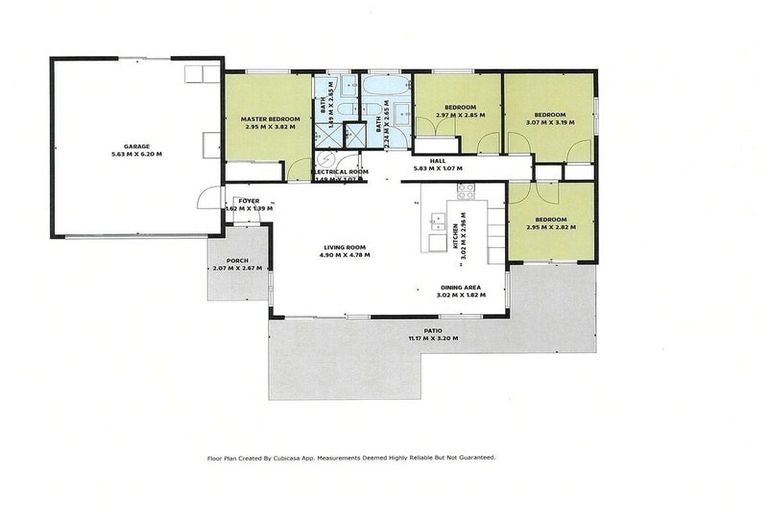
4a Waitaua Street, Papakura, 2110 is a Residential property built in 2010 with 4 bedrooms, 2 bathrooms and 2 parking spaces. The property is estimated to be valued in the range of $800,000 to $900,000.
It is unknown when the property was last sold or how much it was sold for. On 1 May 2024, 4a Waitaua Street, Papakura, 2110 had a Rating Valuation with a Capital Value of $920,000, Land Value of $480,000 and Improvement Value of $440,000.
| Date | Type | Price | Agent/Agency |
|---|---|---|---|
| 19 Dec 2025 | Rented | $650 | Chris Cheung of LJ Hooker Southern Partners, (Licensed: Reaa 2008) |
| 21 Nov 2025 | ASKING PRICE | $869,000 | Graham Clark of LJ Hooker Southern Partners, (Licensed: Reaa 2008) |
Lot 3 Deposited Plan 607427
There are no similar properties in the area that are listed for sale or recently sold.